Main image
Under Offer
Offers in excess of £230,000

Tom Childs Close Grantham

Grantham, United Kingdom
Property Type - Detached
Bed 3
Bath 2
632925
Save
love
Share
upload
Property
Property
Property
Property
Property
Property
Property
Property
Property
Property
Property
Property
Property
Property
Property
Property
Property
Property
Property
Property
Property
Property
Property
Property
Property
Property
Property
Property
Property
Property
Property
Property
Property
Property
Property
Property
Property
Property
Property
Property
Property
Property
Property
Property

Property Details

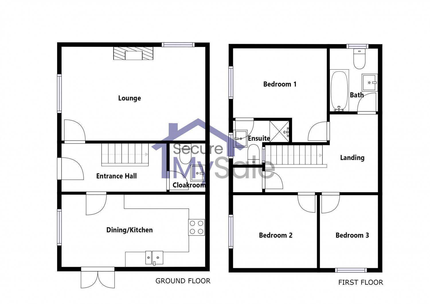
Detached house situated in a quiet cul-de-sac on this sought-after development on the outskirts of Grantham town centre. The well-presented accommodation briefly comprises entrance hall, lounge, kitchen diner and cloakroom to the ground floor. To the first floor there are three bedrooms with an en-suite to the master bedroom and a family bathroom. Outside there is a driveway to the side leading to the single garage and off-road parking. Viewing is highly recommended to appreciate the standard of accommodation on offer.

 

Ground Floor

 

Entrance Hallway

Entrance door to the front, stairs rising to the first-floor landing, radiator. Doors to:

 

Cloakroom (6’1’ x 3’2’)

Fitted with two-piece suite comprising low level WC and wash hand basin, tiled splashbacks and extractor fan.

 

Lounge (16'5" X 10'6")

Having uPVC window to the front elevation and side elevation, radiator, television point, feature fireplace housing electric fire.

 

Dining Kitchen (16'8" X 8'10")

Having uPVC window to the front and side elevations. The kitchen is fitted with a range of both wall and base units, gas hob with extractor fan over, electric oven, plumbing for dishwasher/washing machine, one and a half bowl stainless steel sink inset to roll edge work surface, tiled splashbacks, tiled flooring, radiator, space for dining table and fridge freezer, tiles flooring and double-glazed French doors leading to the rear garden.

 

First Floor 

 

Landing (10’9’ x 9’9”)

Staircase from the entrance hall, access to the loft space, airing cupboard. Doors to:

 

Master Bedroom (10’9’ x 10'7")

Having uPVC window to the front elevation, radiator, television point. Door through to:

 

En-Suite Shower Room

Having obscure uPVC window to the front elevation, heated towel rail, shaver point, extractor fan, complimentary tiling to the walls. Fitted with suite comprising low level WC, pedestal wash hand basin and walk-in shower cubicle with plumbed shower.

 

Bedroom Two (9'8" X 9'0")

Having uPVC window to the front elevation, radiator.

 

Bedroom Three (8'10" X 6'7")

Having uPVC window to the side elevation, radiator. Currently used as dressing room.

 

Family Bathroom (7’0” x 5’4’)

Having obscure uPVC window to the rear elevation. Fitted with suite comprising low level WC, pedestal wash hand basin, panelled bath with electric shower over. Fitted shower screen Complimentary tiling to the walls, extractor fan, shaver point and heated towel rail.

 

Outside 

 

Front Garden

Small lawned area and established shrubbery and block paved pavement to the front door.

 

Single Garage

Having up and over door, power and lighting connected, with off road parking to the front.

 

Rear Garden

Gated side access to the enclosed rear garden from the driveway being predominately laid to lawn with a range of established attractive borders and shrubs, extensive slabbed patio seating area, outside power point and outside tap.

 

Property Details

Detached house situated in a quiet cul-de-sac on this sought-after development on the outskirts of Grantham town centre. The well-presented accommodation briefly comprises entrance hall, lounge, kitchen diner and cloakroom to the ground floor. To the first floor there are three bedrooms with an en-suite to the master bedroom and a family bathroom. Outside there is a driveway to the side leading to the single garage and off-road parking. Viewing is highly recommended to appreciate the standard of accommodation on offer.

 

Ground Floor

 

Entrance Hallway

Entrance door to the front, stairs rising to the first-floor landing, radiator. Doors to:

 

Cloakroom (6’1’ x 3’2’)

Fitted with two-piece suite comprising low level WC and wash hand basin, tiled splashbacks and extractor fan.

 

Lounge (16'5" X 10'6")

Having uPVC window to the front elevation and side elevation, radiator, television point, feature fireplace housing electric fire.

 

Dining Kitchen (16'8" X 8'10")

Having uPVC window to the front and side elevations. The kitchen is fitted with a range of both wall and base units, gas hob with extractor fan over, electric oven, plumbing for dishwasher/washing machine, one and a half bowl stainless steel sink inset to roll edge work surface, tiled splashbacks, tiled flooring, radiator, space for dining table and fridge freezer, tiles flooring and double-glazed French doors leading to the rear garden.

 

First Floor 

 

Landing (10’9’ x 9’9”)

Staircase from the entrance hall, access to the loft space, airing cupboard. Doors to:

 

Master Bedroom (10’9’ x 10'7")

Having uPVC window to the front elevation, radiator, television point. Door through to:

 

En-Suite Shower Room

Having obscure uPVC window to the front elevation, heated towel rail, shaver point, extractor fan, complimentary tiling to the walls. Fitted with suite comprising low level WC, pedestal wash hand basin and walk-in shower cubicle with plumbed shower.

 

Bedroom Two (9'8" X 9'0")

Having uPVC window to the front elevation, radiator.

 

Bedroom Three (8'10" X 6'7")

Having uPVC window to the side elevation, radiator. Currently used as dressing room.

 

Family Bathroom (7’0” x 5’4’)

Having obscure uPVC window to the rear elevation. Fitted with suite comprising low level WC, pedestal wash hand basin, panelled bath with electric shower over. Fitted shower screen Complimentary tiling to the walls, extractor fan, shaver point and heated towel rail.

 

Outside 

 

Front Garden

Small lawned area and established shrubbery and block paved pavement to the front door.

 

Single Garage

Having up and over door, power and lighting connected, with off road parking to the front.

 

Rear Garden

Gated side access to the enclosed rear garden from the driveway being predominately laid to lawn with a range of established attractive borders and shrubs, extensive slabbed patio seating area, outside power point and outside tap.

 

Enquire About This Property

Get in contact with us about this property today and one of our team will be in touch

Secure My Sale Estate Agents Grantham's photo

This property is marketed by

Secure My Sale Estate Agents Grantham

Similar Properties

Featured Properties