Main image
Under Offer
Offers over £230,000

Second Avenue Grantham Lincs NG31

Grantham, United Kingdom
Property Type - Detached
Bed 4
Bath 2
607478
Save
love
Share
upload
Property
Property
Property
Property
Property
Property
Property
Property
Property
Property
Property
Property
Property
Property
Property
Property
Property
Property
Property
Property
Property
Property
Property
Property
Property
Property
Property
Property
Property
Property
Property
Property
Property
Property
Property
Property
Property
Property
Property
Property
Property
Property
Property
Property
Property
Property

Property Details

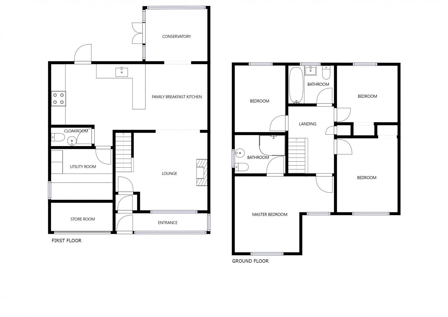
Internal inspection is essential on this superbly presented and maintained individual detached house located on the ever-popular residential estate of Alma Park.  The property in brief comprises of four double bedrooms with newly fitted en-suite to the master bedroom, lounge, family living kitchen and fully re-fitted family bathroom.  The property also benefits from gas fired central heating and double glazing, cloak and utility room and conservatory.  Exterior of the property to the front there is amply off-road parking for several vehicles and gated access to the rear.  The rear garden is fully enclosed and low maintenance.  

Ground Floor 

Entrance vestibule: double glazed door to the front with matching double-glazed windows to the side and front, tiled flooring door leading through to entrance 16’9” x 3’7”  

Entrance: 4’8” x 2’6”

Lounge: double glazed bow window to the frontal aspect feature electric fire fitted into fireplace with separate gas point, tv and telephone point, wooden flooring, wall light points, textured ceiling opening through to family breakfast kitchen 15’10” x 13’8”

Family breakfast kitchen: this is the hub of the home and has been delightfully fitted with a range of wall and base units with contrasting real wood work surfaces, inset 1½ bowl stainless steel sink drainer, tiling to splashback, gas and electric cooker points with fitted stainless steel range multi fuel cooker with matching stainless steel splashback and cooker hood, fitted breakfast bar, tiled and wooden flooring, inset downlights with coving to the ceiling, plumbing for dishwasher, space for fridge/freezer, opening through to the conservatory and doors leading to rear garden, cloakroom and utility room 24’5” x 10’9”

Conservatory: double glazed windows to the rear and side and double-glazed French doors leading to the garden, wooden flooring, wall light points 9’7” x 9’4”

Cloakroom: a two-piece white suite comprising of low level wc, wash handbasin, tiling to splashback, tiled flooring and double-glazed window to the side 4’8” x 2’7”

Utility Room: formerly part of the garage has fitted base cupboards with work surfaces above, houses the central heating boiler, plumbing for washing machine, space for tumble dryer 12’2” x 8’1”

First Floor

Landing: staircase leading from the lounge, loft access houses the airing cupboard, textured ceiling, doors leading to all bedrooms and family bathroom

Master Bedroom: has a range of bespoke fitted wardrobes, separate dressing area, two double glazed windows to the frontal aspect, tv and telephone point, textured ceiling and door leading through to en-suite 16’3 x 11’4” max

En-suite shower room: this has been recently fully re-fitted with double corner shower cubicle and dual plumbed in shower, wash hand basin and vanity units, low level wc, heated towel rail, inset downlights, side double glazed window, fully tiled walls with contrasting tiled flooring, extractor fan 8’1” x 5’9”

Bedroom: double glazed window to the rear, textured ceiling, inset downlights, tv point 9’6” x 9’5”

Bedroom: double glazed window to the frontal aspect, textured ceiling 12’9 x 8’5”

Bedroom: rear double-glazed window, textured ceiling, separate loft access 10’9” x 7’8”

Family bathroom: a fully re-fitted three-piece suite comprising of panel bath with plumbed in shower above, fitted shower screen, wash hand basin, low level wc, fully tiled wall with contrasting tiled floor, inset downlights and extractor fan 

Outside

Front garden: low maintenance with off road parking for three cars, gated access and pathway leading to the rear garden

Rear garden: low maintenance garden mainly laid to concrete slabs, brick wall enclosed with outside tap and power, hot tub fitted under wooden enclosure, separate wooden summer house

Property Details

Internal inspection is essential on this superbly presented and maintained individual detached house located on the ever-popular residential estate of Alma Park.  The property in brief comprises of four double bedrooms with newly fitted en-suite to the master bedroom, lounge, family living kitchen and fully re-fitted family bathroom.  The property also benefits from gas fired central heating and double glazing, cloak and utility room and conservatory.  Exterior of the property to the front there is amply off-road parking for several vehicles and gated access to the rear.  The rear garden is fully enclosed and low maintenance.  

Ground Floor 

Entrance vestibule: double glazed door to the front with matching double-glazed windows to the side and front, tiled flooring door leading through to entrance 16’9” x 3’7”  

Entrance: 4’8” x 2’6”

Lounge: double glazed bow window to the frontal aspect feature electric fire fitted into fireplace with separate gas point, tv and telephone point, wooden flooring, wall light points, textured ceiling opening through to family breakfast kitchen 15’10” x 13’8”

Family breakfast kitchen: this is the hub of the home and has been delightfully fitted with a range of wall and base units with contrasting real wood work surfaces, inset 1½ bowl stainless steel sink drainer, tiling to splashback, gas and electric cooker points with fitted stainless steel range multi fuel cooker with matching stainless steel splashback and cooker hood, fitted breakfast bar, tiled and wooden flooring, inset downlights with coving to the ceiling, plumbing for dishwasher, space for fridge/freezer, opening through to the conservatory and doors leading to rear garden, cloakroom and utility room 24’5” x 10’9”

Conservatory: double glazed windows to the rear and side and double-glazed French doors leading to the garden, wooden flooring, wall light points 9’7” x 9’4”

Cloakroom: a two-piece white suite comprising of low level wc, wash handbasin, tiling to splashback, tiled flooring and double-glazed window to the side 4’8” x 2’7”

Utility Room: formerly part of the garage has fitted base cupboards with work surfaces above, houses the central heating boiler, plumbing for washing machine, space for tumble dryer 12’2” x 8’1”

First Floor

Landing: staircase leading from the lounge, loft access houses the airing cupboard, textured ceiling, doors leading to all bedrooms and family bathroom

Master Bedroom: has a range of bespoke fitted wardrobes, separate dressing area, two double glazed windows to the frontal aspect, tv and telephone point, textured ceiling and door leading through to en-suite 16’3 x 11’4” max

En-suite shower room: this has been recently fully re-fitted with double corner shower cubicle and dual plumbed in shower, wash hand basin and vanity units, low level wc, heated towel rail, inset downlights, side double glazed window, fully tiled walls with contrasting tiled flooring, extractor fan 8’1” x 5’9”

Bedroom: double glazed window to the rear, textured ceiling, inset downlights, tv point 9’6” x 9’5”

Bedroom: double glazed window to the frontal aspect, textured ceiling 12’9 x 8’5”

Bedroom: rear double-glazed window, textured ceiling, separate loft access 10’9” x 7’8”

Family bathroom: a fully re-fitted three-piece suite comprising of panel bath with plumbed in shower above, fitted shower screen, wash hand basin, low level wc, fully tiled wall with contrasting tiled floor, inset downlights and extractor fan 

Outside

Front garden: low maintenance with off road parking for three cars, gated access and pathway leading to the rear garden

Rear garden: low maintenance garden mainly laid to concrete slabs, brick wall enclosed with outside tap and power, hot tub fitted under wooden enclosure, separate wooden summer house

Enquire About This Property

Get in contact with us about this property today and one of our team will be in touch

Secure My Sale Estate Agents Grantham's photo

This property is marketed by

Secure My Sale Estate Agents Grantham

Similar Properties

Featured Properties