Main image
Under Offer
Guide price of £250,000

Harlaxton Road, Grantham, NG31

Grantham, United Kingdom
Property Type - Terraced
Bed 4
Bath 1
758234
Save
love
Share
upload
Property
Property
Property
Property
Property
Property
Property
Property
Property
Property
Property
Property
Property
Property
Property
Property
Property
Property
Property
Property
Property
Property
Property
Property
Property
Property

Property Details

  • Period Property
  • Four Bedrooms
  • Two Reception Rooms
  • Double Garage
  • Off Road Parking
  • Large Rear Garden
  • Freehold

 

 

Nestled in the heart of Grantham this Four Bedroom property offers an impeccable mix of comfort and convenience. Located in proximity of the town centre, train station and amenities this home really does have it all!

 

Set over three floors, the family home provides many original features with a modern touch across the home. Starting on the ground floor we enter the porch which is a great space to take off any shoes and coats. We then enter the hallway which stretches almost twenty-three feet in length! With access to the Sitting Room, Dining Room, Kitchen, and access to upstairs. Off the kitchen we have a conservatory / Utility space. Currently occupied by the washing machine, tumble dryer and a short base unit with a sink. 

On the First Floor we encounter Three Double rooms and a family, Four-piece Bathroom suite. The Bathroom located in the centre of the home is a fantastic space if you have a younger family. A separate electric shower to bath, a toilet and basin. All three bedrooms have enough space to fit a double bed and additional wardrobes, desks, or toy boxes! 

On the Second floor of the property, we find the fourth and final bedroom. A converted attic space this is a dream for a teenager, with their own staircase and plenty of privacy. Another double room with space for whatever they desire. Currently occupied with a fantastic drum kit, double bed, and a wardrobe! 

To the rear we have a large garden which stretches back to the double garage located at the rear of the property. In the summer the decked area is occupied by a hot tub and has entertained many a guest. Alongside the double garage there is parking to the rear for one vehicle.

This family home is a must view and with its deceptively spacious interior and fantastic rear garden space. 

 

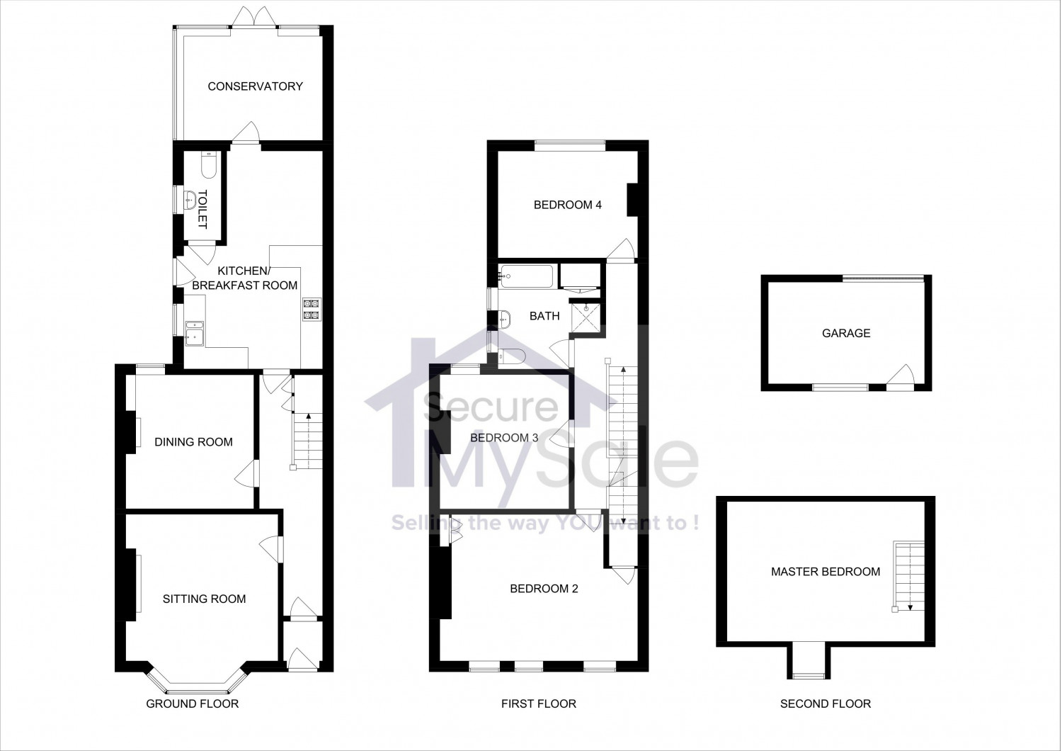
Hallway: 23ft x 6’09ft (max) 

A large hallway with access to the sitting room, dining room, kitchen, and the stairs to the first floor. 

Sitting Room: 13’03ft x 13’1ft 

A bay window to the front aspect, a gas fireplace, double radiator and carpeted throughout the room. 

Dining Room: 12’02ft x 11’07ft 

A window facing the rear of the property, carpeted throughout, currently used as a playroom. Another gas fireplace located in the room with a double radiator.

Kitchen/Breakfast Room: 19’09ft (Max) x 12’08ft

A variety of wall and base kitchen units, access to the conservatory, downstairs toilet, and a side access to the garden. Space for a dishwasher, fridge freezer and a dining table. Laminate flooring throughout this room. 

Downstairs Toilet: 5’09ft x 3’05ft 

Toilet, basin and wall mounted gas boiler located in this room. This is a conventional boiler with the water tank located on the first floor. 

Conservatory: 9ft’06 x 12ft’05 

A base unit with sink and space for a washing machine and tumble dryer. A great space for additional dining, gym or office space. French doors to the rear. 

First Floor: 

Bedroom Two: 13ft’03 x 19ft’01 (Max) 

The largest bedroom out of the four currently used as the main bedroom. Three double glazed windows bringing in lots of light, built in storage either side of the room used as a wardrobe. Carpeted throughout facing the front of the property. 

Bedroom Three: 12ft’03 x 11ft’07 

A double room facing the rear of the property, carpeted throughout. 

Bathroom: 9ft’06 x 9ft’1 (Max)

A fourpiece suite located in the centre of the home, and electric shower, bath, toilet and basin. Frosted double glazed windows and a large towel radiator. Hot water tank located in the airing cupboard with space for towels above the tank. 

Bedroom Four:  9ft’01 x 12ft’07 

Facing the rear of the property, newly carpeted with a double radiator. Space for a double bed and a wardrobe. 

Bedroom One: 18ft x 15ft’08 (Max) 

Located on the second floor of the property this room sits within the eaves of the home. It has plenty of space. Front aspect window, plenty of room for a double bed and many other pieces of furniture. 

 

Rear Garden:

A large space at the rear of the property. Majority lawned area with 2 separate seating areas. A decked area which is occupied with a hot tub in the summer months and a seating area adjacent to this which is ideal for entertaining. Access to the garage is at the end of the garden. 

Double Garage: 

To the rear of the property, this double garage has plenty of space to store all your tools, cars, motorbikes or even convert into a large office space! Infront of the garage we have one further parking space. 

Property Details

  • Period Property
  • Four Bedrooms
  • Two Reception Rooms
  • Double Garage
  • Off Road Parking
  • Large Rear Garden
  • Freehold

 

 

Nestled in the heart of Grantham this Four Bedroom property offers an impeccable mix of comfort and convenience. Located in proximity of the town centre, train station and amenities this home really does have it all!

 

Set over three floors, the family home provides many original features with a modern touch across the home. Starting on the ground floor we enter the porch which is a great space to take off any shoes and coats. We then enter the hallway which stretches almost twenty-three feet in length! With access to the Sitting Room, Dining Room, Kitchen, and access to upstairs. Off the kitchen we have a conservatory / Utility space. Currently occupied by the washing machine, tumble dryer and a short base unit with a sink. 

On the First Floor we encounter Three Double rooms and a family, Four-piece Bathroom suite. The Bathroom located in the centre of the home is a fantastic space if you have a younger family. A separate electric shower to bath, a toilet and basin. All three bedrooms have enough space to fit a double bed and additional wardrobes, desks, or toy boxes! 

On the Second floor of the property, we find the fourth and final bedroom. A converted attic space this is a dream for a teenager, with their own staircase and plenty of privacy. Another double room with space for whatever they desire. Currently occupied with a fantastic drum kit, double bed, and a wardrobe! 

To the rear we have a large garden which stretches back to the double garage located at the rear of the property. In the summer the decked area is occupied by a hot tub and has entertained many a guest. Alongside the double garage there is parking to the rear for one vehicle.

This family home is a must view and with its deceptively spacious interior and fantastic rear garden space. 

 

Hallway: 23ft x 6’09ft (max) 

A large hallway with access to the sitting room, dining room, kitchen, and the stairs to the first floor. 

Sitting Room: 13’03ft x 13’1ft 

A bay window to the front aspect, a gas fireplace, double radiator and carpeted throughout the room. 

Dining Room: 12’02ft x 11’07ft 

A window facing the rear of the property, carpeted throughout, currently used as a playroom. Another gas fireplace located in the room with a double radiator.

Kitchen/Breakfast Room: 19’09ft (Max) x 12’08ft

A variety of wall and base kitchen units, access to the conservatory, downstairs toilet, and a side access to the garden. Space for a dishwasher, fridge freezer and a dining table. Laminate flooring throughout this room. 

Downstairs Toilet: 5’09ft x 3’05ft 

Toilet, basin and wall mounted gas boiler located in this room. This is a conventional boiler with the water tank located on the first floor. 

Conservatory: 9ft’06 x 12ft’05 

A base unit with sink and space for a washing machine and tumble dryer. A great space for additional dining, gym or office space. French doors to the rear. 

First Floor: 

Bedroom Two: 13ft’03 x 19ft’01 (Max) 

The largest bedroom out of the four currently used as the main bedroom. Three double glazed windows bringing in lots of light, built in storage either side of the room used as a wardrobe. Carpeted throughout facing the front of the property. 

Bedroom Three: 12ft’03 x 11ft’07 

A double room facing the rear of the property, carpeted throughout. 

Bathroom: 9ft’06 x 9ft’1 (Max)

A fourpiece suite located in the centre of the home, and electric shower, bath, toilet and basin. Frosted double glazed windows and a large towel radiator. Hot water tank located in the airing cupboard with space for towels above the tank. 

Bedroom Four:  9ft’01 x 12ft’07 

Facing the rear of the property, newly carpeted with a double radiator. Space for a double bed and a wardrobe. 

Bedroom One: 18ft x 15ft’08 (Max) 

Located on the second floor of the property this room sits within the eaves of the home. It has plenty of space. Front aspect window, plenty of room for a double bed and many other pieces of furniture. 

 

Rear Garden:

A large space at the rear of the property. Majority lawned area with 2 separate seating areas. A decked area which is occupied with a hot tub in the summer months and a seating area adjacent to this which is ideal for entertaining. Access to the garage is at the end of the garden. 

Double Garage: 

To the rear of the property, this double garage has plenty of space to store all your tools, cars, motorbikes or even convert into a large office space! Infront of the garage we have one further parking space. 

Enquire About This Property

Get in contact with us about this property today and one of our team will be in touch

Secure My Sale Estate Agents Grantham's photo

This property is marketed by

Secure My Sale Estate Agents Grantham

Similar Properties

Featured Properties