Main image
Under Offer
Guide price of £135,000

College Street, Grantham, NG31

Grantham, United Kingdom
Property Type - Terraced
Bed 2
Bath 1
762050
Save
love
Share
upload
Property
Property
Property
Property
Property
Property
Property
Property
Property
Property
Property
Property
Property
Property
Property
Property
Property
Property
Property
Property
Property
Property
Property
Property

Property Details

·      No Chain

·      Ideal Investment

·      Ideal First Purchase

·      Close To Town Centre

·      Large Attic Room

 

 

Secure My Sale offer a great opportunity to purchase this mid-terraced home in Grantham either as an investment, or as your first home. This two bedroom house needs little to no work doing to it, as it has been well-maintained by the current owners.

 

Right next to the centre of Grantham, this property is closely located to lots of local amenities, like sought after grammar schools, Whyndam Park, and the historic St. Wulframs Church. There are also lovely walks you can go on just behind the house on the River Witham.

 

This property has lots of space that you can mould in any way you see fit. It also has a long galley kitchen and an enclosed garden to the rear.

 

 

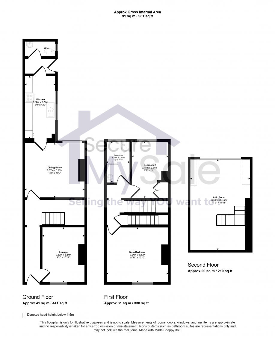
Living Room: - 2.53m x 3.34m

 

Offset from the main entrance hallway.

 

Dining Room: - 3.57m x 3.27m

 

Larger room connecting kitchen to the rest of the house.

 

Kitchen: - 1.82m x 3.74m

 

Long galley kitchen with plenty of potential.

 

Main Bedroom: - 3.64m x 3.29m

 

Large room with plenty of space.

 

Bedroom 2 : - 2.18m x 3.38m

 

Fair sized room with built in wardrobes.

 

Bathroom: - 1.29m x 2.41m

 

Includes both a bath, basin and toilet

 

Attic Room: - 3.59m x 5.45m

 

Additional room in the attic space, ideal office or play room 

 

Rear Garden: - 

 

Low maintenance rear garden

Property Details

·      No Chain

·      Ideal Investment

·      Ideal First Purchase

·      Close To Town Centre

·      Large Attic Room

 

 

Secure My Sale offer a great opportunity to purchase this mid-terraced home in Grantham either as an investment, or as your first home. This two bedroom house needs little to no work doing to it, as it has been well-maintained by the current owners.

 

Right next to the centre of Grantham, this property is closely located to lots of local amenities, like sought after grammar schools, Whyndam Park, and the historic St. Wulframs Church. There are also lovely walks you can go on just behind the house on the River Witham.

 

This property has lots of space that you can mould in any way you see fit. It also has a long galley kitchen and an enclosed garden to the rear.

 

 

Living Room: - 2.53m x 3.34m

 

Offset from the main entrance hallway.

 

Dining Room: - 3.57m x 3.27m

 

Larger room connecting kitchen to the rest of the house.

 

Kitchen: - 1.82m x 3.74m

 

Long galley kitchen with plenty of potential.

 

Main Bedroom: - 3.64m x 3.29m

 

Large room with plenty of space.

 

Bedroom 2 : - 2.18m x 3.38m

 

Fair sized room with built in wardrobes.

 

Bathroom: - 1.29m x 2.41m

 

Includes both a bath, basin and toilet

 

Attic Room: - 3.59m x 5.45m

 

Additional room in the attic space, ideal office or play room 

 

Rear Garden: - 

 

Low maintenance rear garden

Enquire About This Property

Get in contact with us about this property today and one of our team will be in touch

Secure My Sale Estate Agents Grantham's photo

This property is marketed by

Secure My Sale Estate Agents Grantham

Similar Properties

Featured Properties